Plans d’étage
- 
	
			
			
		Salle de bain et les buanderies combinées – Plans d’étageLes salles de bains et les buanderies combinées sont de plus en plus courantes car elles permettent de gagner de l’espace et sont tout simplement efficaces. Les plans d’aménagement varient… Continuer à lire
- 
	
			
			
		Plans d’une remise de 12 pi x 8 pi (avec dessins)Les abris de jardin sont pratiques pour le stockage supplémentaire, ils peuvent contenir tout, des outils aux équipements d’entretien de la pelouse et aux équipements sportifs. Cependant, de nos jours,… Continuer à lire
- 
	
			
			
		Plans de bâtiments à usage mixte (avec dessins)En général, les lieux où vous vivez, faites vos courses et travaillez sont tous des endroits séparés. Cependant, les bâtiments à usage mixte deviennent de plus en plus populaires et… Continuer à lire
- 
	
			
			
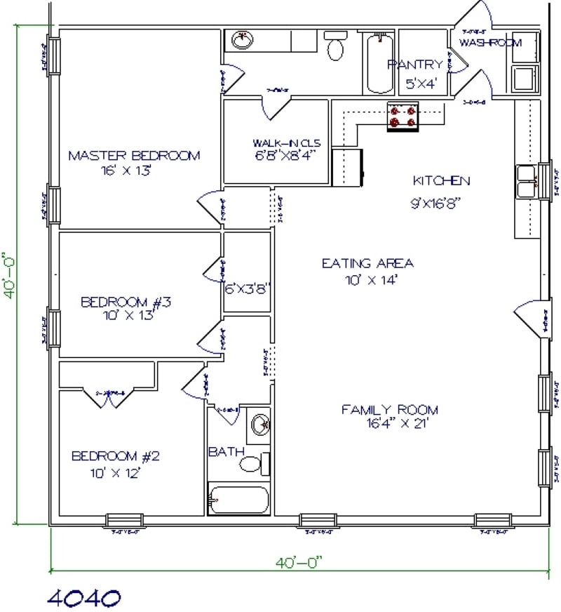
		Plans de maison 40′ x 40′ (avec dessins)La taille moyenne des maisons en Amérique est d’environ 1 600 pieds carrés. Bien sûr, cela tient compte des maisons anciennes et existantes. La taille moyenne des nouvelles constructions est… Continuer à lire
- 
	
			
			
		Plans de salle de bain « Jack and JillLes salles de bains Jack and Jill sont souvent un choix populaire pour les ménages à plusieurs enfants, avec deux chambres séparées partageant une salle de bains. Elles tirent même… Continuer à lire
- 
	
			
			
		Plans de maisons de 15 pieds de large (avec dessins)Lorsque vous pensez à une maison de 15 pieds de large, vous pouvez imaginer une maison de type shotgun ou une maison mobile à largeur unique. Ces maisons sont généralement… Continuer à lire
 
				




