Plans de bâtiments à usage mixte (avec dessins)

En général, les lieux où vous vivez, faites vos courses et travaillez sont tous des endroits séparés. Cependant, les bâtiments à usage mixte deviennent de plus en plus populaires et tout ce dont vous avez besoin se trouve sous un même toit. Ces bâtiments ont joué un rôle de catalyseur dans la création de quartiers et de centres-villes plus efficaces pour la vie quotidienne.
Un bâtiment à usage mixte est classé selon son objectif et selon qu’il est vertical ou horizontal. Les types les plus courants de bâtiments à usage mixte sont les rues principales, les centres commerciaux, les quartiers piétonniers, les espaces de bureaux compacts ou résidentiels et les hôtels à usage mixte. Les résidences dans les bâtiments à usage mixte sont généralement situées au-dessus ou derrière l’espace commercial, selon la configuration, et leur nombre varie.
Qu’est-ce qu’un bâtiment à usage mixte ?
Les immeubles à usage mixte sont des bâtiments ou des terrains qui comprennent à la fois des espaces résidentiels et commerciaux. Ces immeubles ont souvent des bureaux au rez-de-chaussée et des appartements au sommet, d’où les immeubles à usage mixte.
Les bâtiments à usage mixte sont devenus plus populaires en raison des changements dans le monde du travail ainsi que dans le comportement des consommateurs. Il y a une demande croissante d’appartements et de condos, car posséder une maison n’est plus un rêve pour tout le monde.
Les gens préfèrent la commodité et la facilité de marche qu’offrent les immeubles à usage mixte. De plus, ces développements sont généralement plus performants dans les villes en période de ralentissement économique, contrairement aux propriétés à usage unique.
Il est très rare de trouver une grande quantité de biens immobiliers disponibles dans les grandes villes. Les immeubles à usage mixte sont une solution pour utiliser les ressources et l’espace au sein d’une ville. Ces quartiers sont ensuite intégrés dans un lieu où les citoyens peuvent travailler, faire des achats et vivre.
Vous trouverez généralement des immeubles à usage mixte dans les grandes villes comme Manhattan, Brooklyn et Philadelphie.
Types d’immeubles à usage mixte
Tous les bâtiments à usage mixte se répartissent en deux catégories : les bâtiments à usage mixte vertical et les bâtiments à usage mixte horizontal.
Un bâtiment à usage mixte vertical fait partie d’une catégorie plus large lorsqu’on décrit les développements à usage mixte. Les immeubles à usage mixte vertical peuvent abriter des entreprises, des restaurants, des cafés, des bureaux gouvernementaux et même des installations de transport en commun aux étages inférieurs. Les unités résidentielles, les condos et les chambres d’hôtel se trouvent aux étages supérieurs de l’immeuble.
Un bâtiment à usage mixte horizontal est une propriété qui combine plusieurs bâtiments à usage unique en un seul espace. Cela permet aux entreprises et aux habitations de se transformer en une communauté ou un quartier praticable. Dans les zones urbaines, les promoteurs réaffectent souvent des bâtiments abandonnés en bâtiments à usage mixte.
Il existe de nombreux types de bâtiments à usage mixte. Bien qu’ils abritent tous des unités commerciales et résidentielles, leur conception varie légèrement en fonction de leur utilisation.
Bâtiment à usage mixte de la rue principale
Le modèle de bâtiments à usage mixte de la rue principale est le plus ancien modèle à usage mixte existant. Ces propriétés sont des bâtiments de deux ou trois étages avec des unités résidentielles aux étages supérieurs et des unités commerciales au rez-de-chaussée. Les unités résidentielles et commerciales donnent toutes deux sur la rue.
L’objectif du modèle de rue principale des bâtiments à usage mixte est de revitaliser les communautés urbaines dans les grandes villes. Ces bâtiments sont la version moderne des magasins familiaux. Ils abritent des lieux de divertissement, des restaurants et d’autres services, tandis que des appartements se trouvent au-dessus ou derrière les façades des magasins.
Quartier piétonnier à usage mixte
Un quartier piétonnier à usage mixte combine des bâtiments à usage mixte vertical et horizontal dans une même zone. Dans cette zone, tout se trouve généralement à 5 ou 10 minutes de marche les uns des autres.
Ces types de quartiers à usage mixte sont similaires au modèle de la rue principale. Ils vous donnent l’impression de faire partie d’une communauté distincte avec l’atmosphère d’une petite ville.
Centre commercial ou grand magasin Bâtiment à usage mixte
Alors que de nombreux magasins de détail ont commencé à fermer leurs portes en raison de l’essor du commerce électronique, les immeubles à usage mixte se sont multipliés. Les centres commerciaux et les grands magasins ont réaffecté leur espace pour accueillir des unités résidentielles et des entreprises. Ces types d’aménagements ont refait surface partout aux États-Unis et dans le monde.
Espace de bureau compact avec commodités
Le désir de vivre où l’on travaille est devenu populaire l’année dernière avec la possibilité de travailler à domicile. Qu’il s’agisse d’un phénomène générationnel ou non, les petites unités de bureaux au sein de communautés résidentielles à usage mixte sont là pour rester. Il s’agit de structures commerciales à plusieurs étages qui abritent des commerces de détail et des sociétés de services professionnels avec des plans de bureaux.
Ces bâtiments s’adressent aux entreprises qui ont besoin d’un espace de bureau mais qui ont une petite empreinte.
Bureau et espace résidentiel
Il est courant de trouver des combinaisons de bureaux et d’unités résidentielles dans les zones métropolitaines. Cependant, elles sont également de plus en plus répandues dans les zones suburbaines. Un espace de bureaux à usage mixte est principalement une structure commerciale qui coexiste avec des appartements dans le même bâtiment.
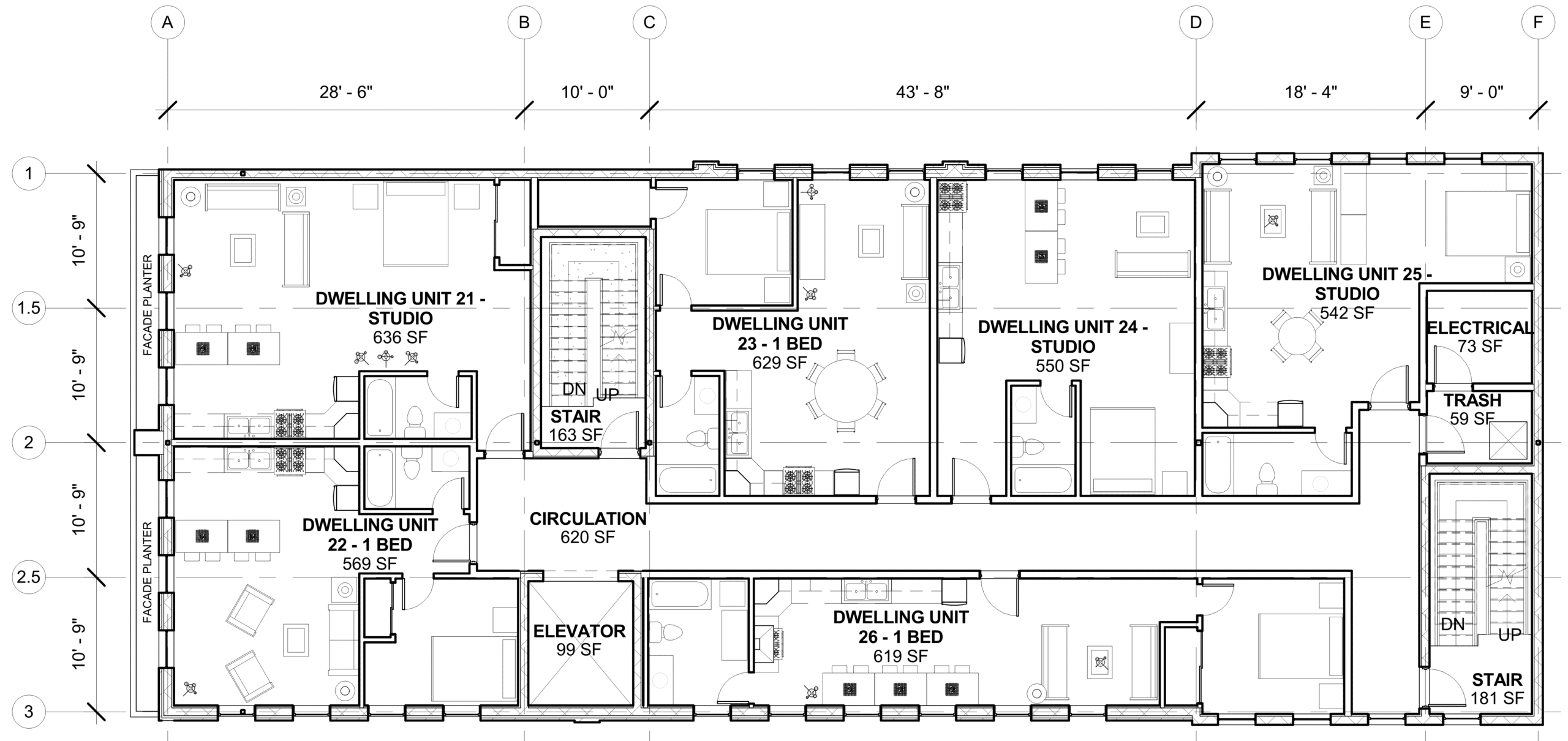
Cette image d’Ideal Properties vous donne une idée des dispositions possibles pour une résidence dans un immeuble à usage mixte.
Hôtel à usage mixte
La tendance la plus récente en matière de propriétés à usage mixte se situe dans le secteur hôtelier. Les hôtels à usage mixte combinent des chambres d’hôtel, des condos et des espaces commerciaux. Certains hôtels à usage mixte disposent même d’espaces de bureaux, un exemple parfait du modèle « vivre-travailler-jouir ».
Avantages d’un bâtiment à usage mixte
Que vous cherchiez à acheter, construire ou vivre dans un immeuble à usage mixte, tenez compte de ces avantages.
Attirer une grande variété de consommateurs
Les immeubles à usage mixte attirent une grande variété de consommateurs. Que vous soyez un jeune professionnel ou une personne âgée, les deux groupes profitent des avantages d’un immeuble à usage mixte. Le fait d’avoir des magasins, des restaurants et d’autres services à sa porte est réconfortant pour tout le monde.
Si vous êtes soucieux de l’environnement, vous apprécierez l’aspect durable d’un immeuble à usage mixte ; vous aurez rarement besoin d’utiliser un véhicule. Tous les groupes préfèrent également la proximité des commodités, l’entretien sur place et les loyers abordables.
La durabilité des locataires commerciaux
Les locataires commerciaux comptent sur leurs relations avec les membres de la communauté pour rester en activité. Pour cette raison, ils privilégient souvent les endroits où leurs clients ont facilement accès à leurs produits ou services. En outre, les locataires commerciaux sont incités à maintenir leur espace loué en bon état car ils veulent attirer les clients.
Une fois que vous avez un locataire, il ne veut pas partir. Dans certaines régions métropolitaines, certains locataires s’inscrivent même sur une liste d’attente pour obtenir une propriété commerciale. Les propriétaires d’entreprises se rendent vite compte de leur taux de réussite élevé en étant situés dans un immeuble à usage mixte et veulent rester.
Du point de vue du résident, vous avez des entreprises familières à votre porte. Lorsqu’il n’y a pas beaucoup de roulement, vous pouvez établir de meilleures relations avec les divers magasins, etc. Vous pourriez même être en mesure d’obtenir de meilleures offres grâce à votre statut de résident.
Les baux commerciaux rapportent plus de revenus
Les contrats de bail net permettent au propriétaire de l’immeuble de répercuter plusieurs coûts sur ses locataires. Il s’agit notamment des impôts fonciers, de l’assurance du bâtiment et des frais d’entretien. En échange, le locataire obtient un loyer moins élevé.
Les baux commerciaux peuvent rapporter plus de revenus. Les propriétés commerciales offrent généralement un rendement annuel de 6 à 12 % du prix d’achat.
Les magasins de briques et de mortier peuvent prospérer
La plupart des consommateurs ont adopté la vente au détail en ligne, mais les immeubles à usage mixte offrent un avantage pour les magasins de briques et de mortier. Les salons, les cinémas, les restaurants et les cliniques auront toujours besoin de la présence des consommateurs. C’est pourquoi les immeubles à usage mixte sont l’emplacement idéal pour ces magasins de détail.
Convenience
Bien sûr, un grand avantage de vivre dans un immeuble à usage mixte est la commodité. Vous pouvez faire beaucoup de choses sans jamais avoir à quitter l’immeuble.
Inconvénients d’un immeuble à usage mixte
Si les avantages d’un immeuble à usage mixte sont nombreux, il existe aussi quelques inconvénients.
Une plus grande responsabilité
La différence la plus importante entre les propriétaires d’immeubles à usage mixte et les propriétaires d’immeubles résidentiels est le niveau de responsabilité. Avoir une entreprise comme locataire peut être agréable parce qu’elle a des baux à long terme. Cependant, si vous devez expulser un locataire commercial, cela peut entraîner une foule de problèmes, surtout s’il s’agit d’une entreprise alimentaire.
Des options de financement compliquées
Obtenir le financement nécessaire à l’achat d’une propriété à usage mixte peut être difficile. Certains emprunteurs pensent qu’ils doivent se tourner vers des prêteurs commerciaux parce qu’il s’agit en partie d’une propriété commerciale. Cependant, si au moins 51 % du bâtiment est résidentiel, des options de prêts non commerciaux sont disponibles.
Conflit entre le commercial et le résidentiel
Il peut y avoir un conflit si la propriété à usage mixte n’est pas développée en tenant compte à la fois du locataire et du propriétaire de l’entreprise. Les locataires commerciaux et les locataires résidentiels devraient avoir les mêmes intérêts et les mêmes objectifs.
Plus de bruit
Vivre juste au-dessus de restaurants et de magasins a ses avantages, mais aussi ses inconvénients. Selon la proximité de l’espace commercial, vous pouvez subir beaucoup de bruit.
Vous pourriez dépenser plus d’argent
Lorsque vous avez tant d’endroits où manger et faire du shopping juste devant votre porte, vous pourriez dépenser plus que vous ne le souhaitez. Il est plus facile de prendre un café ici, un snack là, ou de faire un saut dans un magasin quand vous vous ennuyez.
Augmentation du trafic
Le trafic peut augmenter dans les zones suburbaines où des bâtiments à usage mixte sont présents. Cela est particulièrement vrai lorsque les transports publics ou les parkings ne sont pas disponibles.
Les défis du marketing
Les locataires de services, de commerces de détail et de restaurants peuvent réaliser des bénéfices limités s’ils ne disposent pas du bon marketing. Bien sûr, les clients qui vivent dans la propriété sont faciles à obtenir. Cependant, il peut être difficile d’attirer les clients de l’extérieur de la communauté.
Questions connexes
Quels sont les exemples populaires de propriétés à usage mixte ?
Les propriétés à usage mixte ont commencé à devenir populaires aux États-Unis au début des années 2000. De plus en plus de villes et leurs banlieues périphériques ont augmenté les espaces à usage mixte à louer. Il existe plusieurs propriétés à usage mixte notables à travers les États-Unis.
Les espaces à usage mixte les plus remarquables sont Port Covington à Baltimore, The Gulch à Atlanta, et Schuylkill Yards à Philadelphie. Water Street à Tampa, River District à Chicago, Riverton à Sayreville, New Jersey, et Highpoint sur Columbus Commons sont également populaires.
L’objectif des promoteurs de ces propriétés était de combiner la vie urbaine et les communautés suburbaines à distance de marche.
Combien coûte la location d’un espace commercial dans un immeuble à usage mixte ?
Le coût de location de votre espace de vente au détail dépendra de votre emplacement, du type d’immeuble dans lequel vous louez et de la taille de l’espace que vous souhaitez louer. Pour un espace plus modeste dans un quartier moins populaire, attendez-vous à payer de 15 000 $ à 42 000 $ par an. Cela équivaut à 1 250 $ à 3 000 $ par mois.
Louer un espace plus populaire ou dans un quartier plus agréable de la ville coûte plus cher au pied carré. Une vitrine dans un endroit commercial recherché coûte environ 25 $ par pied carré, par mois en moyenne. Une vitrine dans une zone moins demandée peut coûter entre 10 et 11 $ par pied carré par mois.
Guides connexes
Mots clés: #Plans #bâtiments #usage #mixte #avec #dessins,#Québec, #Canada











