Plans de salle de bain « Jack and Jill

Les salles de bains Jack and Jill sont souvent un choix populaire pour les ménages à plusieurs enfants, avec deux chambres séparées partageant une salle de bains. Elles tirent même leur nom d’une comptine populaire pour enfants, Jack and Jill. Elles permettent également aux membres du foyer d’avoir une entrée privée sans avoir à doubler le nombre de salles de bains.
Les salles de bains Jack and Jill peuvent être disposées de différentes manières, la plus courante étant celle du couloir entre deux chambres. Elles comportent toujours deux lavabos ou vanités, généralement le long d’un mur, avec les toilettes, la baignoire et la douche en face. Certaines salles de bains Jack and Jill comportent un espace séparé pour la baignoire et les toilettes afin de préserver l’intimité avec les lavabos.
Vous pouvez également trouver des salles de bains Jack and Jill avec des lavabos séparés qui séparent une baignoire et des toilettes communes. Certains styles comportent également des placards séparés, tandis que d’autres sont plus simples. Vous ne verrez peut-être pas beaucoup de salles de bains Jack and Jill dans les maisons récentes, mais elles sont excellentes pour gagner de l’espace.
Qu’est-ce qu’une salle de bain Jack and Jill ?
La caractéristique la plus reconnaissable d’une salle de bains Jack and Jill est ses deux points d’accès depuis les pièces partagées. Ces salles de bains sont devenues populaires dans les années 1960, lorsque les familles étaient généralement plus nombreuses.
L’intention originale était que les frères et sœurs partagent ces salles de bains. Ce sont des salles de bains complètes, généralement équipées d’une baignoire et d’une douche ou d’une combinaison baignoire-douche. Vous trouverez toujours deux lavabos, un espace de rangement adéquat et vous pourrez verrouiller les deux entrées.
La configuration la plus courante pour une salle de bain Jack and Jill est entre deux chambres à coucher. Cependant, vous pouvez même en trouver une dans une maison à une chambre. Dans ce cas, une entrée mène à la chambre, tandis que l’autre donne sur le couloir.
Cela permet aux gens d’accéder à la salle de bain sans passer par la chambre. De même, vous pouvez avoir une entrée privée pour votre salle de bain sans avoir à passer par le couloir.
Quelle est la taille typique d’une salle de bain Jack And Jill ?
Les salles de bains Jack and Jill peuvent avoir une disposition différente des salles de bains traditionnelles, mais elles ont à peu près la même taille. La taille moyenne d’une salle de bain complète ordinaire est d’environ 160 pieds carrés. Gardez à l’esprit qu’il s’agit d’une moyenne et que de nombreuses salles de bains sont plus petites ou plus grandes que cette moyenne.
Les salles de bains Jack and Jill ont tendance à être légèrement plus grandes pour s’adapter aux deux portes et aux doubles lavabos. Mais vous pouvez quand même les trouver dans une large gamme de tailles, des plus petites aux plus grandes.
Petites salles de bains Jack And Jill
Une petite salle de bain Jack and Jill peut ne mesurer qu’environ 40 pieds carrés. Ce petit espace aurait probablement deux lavabos proches l’un de l’autre, et tout est partagé. En d’autres termes, il n’y a pas de séparation supplémentaire dans la salle de bain pour les toilettes ou la baignoire.
Vous n’aurez pas non plus beaucoup d’espace de rangement dans une petite salle de bains. Vous pourriez aussi aider à équilibrer la petite surface en ouvrant les portes sur charnières vers les chambres.
Salles de bain « Jack and Jill » de taille moyenne
La taille moyenne d’une salle de bains Jack and Jill est d’environ 110 à 164 pieds carrés. Vous trouverez un plus grand espace de comptoir entre les lavabos et les toilettes sont probablement séparées par leur propre porte. Les portes d’entrée principales peuvent s’ouvrir sur la salle de bains sans problème.
Vous pouvez également aménager beaucoup plus de rangement dans cette taille de salle de bains, notamment en ajoutant une armoire.
Grandes salles de bains Jack And Jill
Si vous avez l’espace nécessaire, pourquoi ne pas donner aux enfants encore plus de place pour s’épanouir ? Cela pourrait atténuer la rivalité entre frères et sœurs (peut-être). Les grandes salles de bains Jack and Jill peuvent mesurer entre 165 et 210 pieds carrés.
Lorsque vous disposez de ce type d’espace, vous pouvez presque créer deux salles de bain séparées. Chaque personne pourrait entrer dans une zone séparée avec un lavabo, une vanité et des rangements.
Ensuite, il y aurait une autre porte menant à une baignoire et une douche (ou un combo) partagées. Les toilettes pourraient aussi être dans cette zone, ou vous pourriez trouver une autre séparation pour les toilettes.
Les salles de bains plus grandes peuvent également accueillir des placards doubles. Si votre budget le permet, vous pouvez même donner à chaque personne son propre lavabo et ses propres toilettes. Le seul élément partagé est alors une baignoire et une douche au milieu.
Différents plans de salle de bain Jack and Jill
Comme vous pouvez le constater à partir des différentes tailles de salles de bains Jack and Jill, vous avez de nombreuses possibilités d’aménagement. Lors de la conception d’une salle de bains commune, tenez compte des personnes qui l’utiliseront et de leur personnalité. Pensez également à la façon dont ils s’entendent.
Pour de nombreux frères et sœurs, avoir une petite salle de bain où tout est partagé est une bonne chose. Cela peut même contribuer à renforcer leur relation et les rendre plus proches. Les enfants multiples, comme les jumeaux et les triplés, s’en sortent généralement très bien avec cette configuration.
Mais, avec d’autres, cela peut être une recette pour un désastre. De plus, si un frère et une soeur partagent la salle de bain, vous devriez envisager un peu plus de séparation. En d’autres termes, vous devez planifier en fonction des gens, et pas seulement en fonction de ce que vous pensez être bon.
Heureusement, il existe une infinité d’options en matière de plans d’étage pour les salles de bains Jack and Jill. En voici quelques-uns pour vous aider à vous inspirer et à faire jaillir votre imagination.
Une salle de bains commune basique avec intimité
L’un des styles de salle de bains les plus courants est un espace de lavabo partagé avec une baignoire et des toilettes séparées. Chaque personne entre depuis sa propre chambre et a un accès immédiat à son lavabo. Les lavabos se trouvent généralement dans un long meuble-lavabo double, offrant un grand espace de rangement, et sont parallèles aux portes des chambres.
De l’autre côté du meuble-lavabo se trouve une autre porte qui mène aux toilettes et à la baignoire. Une autre chose à envisager pour les petites salles de bains Jack & Jill est de changer le style de la porte.
Au lieu de sacrifier trop d’espace avec des portes multiples, vous pouvez installer des portes coulissantes si vous avez l’espace mural nécessaire. Ou, pour la porte intérieure menant aux toilettes, vous pourriez remplacer une porte standard par une porte à deux battants.
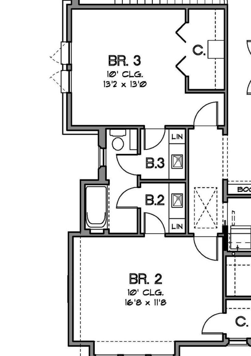
Salle de bain Jack and Jill avec baignoire et toilettes séparées
Cette disposition Jack and Jill offre également beaucoup d’intimité, en séparant les toilettes et la baignoire les unes des autres. Les portes des chambres s’ouvrent sur les chambres et sont perpendiculaires et en face des lavabos. Au lieu de passer par les extrémités de la salle de bains, chaque personne passe par le milieu.
Le combiné baignoire-douche est dans sa propre pièce, séparée par une porte. Les toilettes ont également leur propre espace séparé et se trouvent de l’autre côté de la salle de bains.
Dans cette configuration, les lavabos sont plus rapprochés et au milieu de la salle de bain. Encore une fois, si l’espace à l’intérieur de la salle de bain devient encombré, vous pourriez intervertir les portes intérieures. Il n’y a pas assez de place pour une porte coulissante ici, mais vous pourriez envisager une porte à deux battants ou en accordéon.
Salle de bain Jack And Jill avec vanités privées
L’une des meilleures façons d’ajouter de l’intimité dans une salle de bains commune est de séparer complètement les lavabos. Dans cet agencement, chaque personne a accès à un espace privé avec rangement. Il est séparé du reste de la salle de bains.
C’est idéal pour se maquiller, se brosser les dents, etc., sans avoir à craindre que quelqu’un vienne vous surprendre. Ensuite, chacune de ces zones de lavabo séparées a sa propre porte menant à une zone commune de baignoire et de toilettes.
La baignoire est même un peu décalée, de sorte qu’elle n’est pas en vue des toilettes. Avec un rideau de douche, vous pouvez ajouter un peu d’intimité au cas où quelqu’un aurait besoin d’aller aux toilettes pendant que vous êtes dans la baignoire.
Tout en un seul endroit
Bien sûr, il y a aussi les salles de bains Jack and Jill qui réunissent tout dans une seule pièce. Vous entrez depuis votre chambre et vous voyez les lavabos, la baignoire/douche et les toilettes. Cette configuration est préférable pour les frères et sœurs qui s’entendent bien (ou, au contraire, cela les forcera aussi).
Salle de bain King-Sized Jack And Jill
Vous pouvez incorporer des placards et beaucoup d’espace dans une salle de bains Jack and Jill si vous avez la place. Dans cette disposition, chaque personne entre dans des zones de lavabo séparées, avec en plus un dressing privé.
Des portes coulissantes maximisent l’espace, menant à un grand espace commun de toilettes et de baignoire/douche. Il y a également des rangements supplémentaires dans cette partie de la salle de bains.
Avantages et inconvénients d’une salle de bain Jack and Jill
Les salles de bains Jack and Jill présentent de nombreux avantages et quelques inconvénients. Gardez les points suivants à l’esprit lorsque vous envisagez d’ajouter une salle de bains en enfilade dans votre maison.
Si votre maison dispose d’un espace limité, les salles de bains Jack and Jill peuvent être une excellente idée. Elles sont également rentables et offrent suffisamment de rangement et d’intimité.
Cependant, dans la plupart des cas, vous ne pouvez accéder à la salle de bain qu’à partir des chambres. De plus, cela peut causer un certain conflit avec l’espace, et le long terme peut ne pas être aussi précieux qu’une salle de bain traditionnelle.
En gros, regardez la situation dans son ensemble lorsque vous envisagez d’ajouter une salle de bain Jack and Jill dans vos plans de maison.
Questions connexes
Dans quelles autres situations une salle de bain Jack and Jill serait-elle utile ?
Bien qu’elle soit plus populaire entre les chambres de frères et sœurs, cette salle de bain fonctionne aussi très bien entre une chambre et une chambre d’amis. Ainsi, vos invités ont l’impression d’avoir leur propre salle de bain privée pendant leur séjour. Il peut accéder à la salle de bains sans avoir à quitter sa chambre.
De même, de nombreuses chambres d’hôtes utilisent cette installation pour permettre à deux invités d’avoir une salle de bain plus privée. Si vous avez une maison d’une seule chambre et d’une seule salle de bain, une installation Jack and Jill est également idéale.
De cette façon, vous pouvez toujours avoir une entrée privée à votre salle de bain. Mais les autres n’ont pas à traverser votre chambre pour utiliser la salle de bain.
Combien coûte l’installation d’une salle de bain Jack and Jill ?
Une salle de bain Jack and Jill coûtera à peu près la même chose que l’ajout d’une salle de bain complète traditionnelle dans votre maison. Il peut être légèrement plus élevé pour les installations plus grandes, car vous ajouterez probablement des murs et des portes supplémentaires pour plus de séparation.
Mais, en général, vous pouvez vous attendre à payer environ 20 000 $ pour ajouter une salle de bain Jack and Jill à partir de zéro. Pour les agencements plus grands et plus élaborés, le coût peut être plus proche de 40 000 $.
Si vous avez déjà une salle de bain entre deux salles de bain et que vous voulez la convertir, vous dépenserez entre 600 et 900 $. Il s’agirait d’ajouter les deux portes de chaque chambre à coucher et cela suppose que vous avez l’espace pour le faire.
Si vous devez réorganiser les appareils sanitaires ou la plomberie pour ajouter les portes, vous paierez davantage. Vous devez également décider si vous allez conserver l’entrée originale de la salle de bains ou la fermer.
Publié récemment
Mots clés: #Plans #salle #bain #Jack #Jill,#Québec, #Canada












