Plans d’une remise de 12 pi x 8 pi (avec dessins)

Les abris de jardin sont pratiques pour le stockage supplémentaire, ils peuvent contenir tout, des outils aux équipements d’entretien de la pelouse et aux équipements sportifs. Cependant, de nos jours, les cabanes peuvent être bien plus qu’un simple endroit pour ranger vos affaires. Les gens les utilisent comme cabanes, ateliers, petites salles de jeux, et bien plus encore.
Une remise de 12 pi x 8 pi offre à peu près un peu moins de 96 pieds carrés une fois que vous tenez compte de la charpente et des matériaux. En fonction de votre hauteur de plafond, vous pouvez ajouter de l’espace supplémentaire avec un loft. Au-delà de la taille, vous devrez également tenir compte de l’emplacement des fenêtres, des portes et des étagères.
Bien que moins de 30 mètres carrés puissent sembler petits, cela peut être assez spacieux pour un abri de jardin. Bien sûr, cela dépend en grande partie de l’utilisation que vous comptez faire de votre abri. Mais avec un peu de planification, cette taille peut s’avérer assez polyvalente.
Les principaux choix à considérer avant de décider de l’aménagement de votre abri de jardin
Évidemment, avant de décider de la meilleure façon d’aménager votre remise, vous devez savoir à quoi elle servira. Vous devez également penser à l’emplacement de votre remise, aux permis nécessaires et à l’esthétique.
Comment allez-vous utiliser votre abri de jardin de 12 x 8 pieds ?
Un abri de jardin de 12 pi x 8 pi peut avoir de nombreuses fonctions, et son utilisation influencera considérablement votre plan d’ensemble. Par exemple, si vous prévoyez de l’utiliser uniquement pour le rangement, vous ne voudrez peut-être que quelques étagères. Par contre, si vous entreposez de gros articles, vous pourriez opter pour une porte double plutôt qu’une porte simple.
Si vous entrez et sortez assez rapidement, pour accéder uniquement aux objets stockés, une fenêtre peut suffire. Une fenêtre permet non seulement de ne pas avoir l’impression d’être dans une boîte à chaussures, mais aussi de ventiler.
Cependant, que se passe-t-il si vous travaillez dans votre abri, si vous construisez des objets ou si vous rempotez des plantes ? Cela demande un peu plus de planification car vous aurez besoin de rangement mais aussi d’un espace de travail. Vous voudrez probablement aussi plus de fenêtres pour profiter de la lumière naturelle pendant que vous travaillez.
En plus de la lumière naturelle, vous voudrez peut-être prévoir l’installation de l’électricité dans l’abri. Si l’abri est destiné à servir de lieu de divertissement ou d’espace de vie étendu, vous devrez y penser encore plus.
Par exemple, si l’abri est destiné à servir de salle de jeux ou de cabane, vous voudrez peut-être un intérieur plus fini. Vous pouvez aussi inclure des éléments comme une unité de fenêtre ou ajouter de la plomberie.
Considérations supplémentaires pour votre abri de jardin de 12 x 8 pieds
Une fois que vous connaissez l’objectif de votre remise, vous pouvez mieux décider des éléments supplémentaires dont vous pourriez avoir besoin. Il s’agit notamment de la ventilation, de l’isolation, des matériaux de finition et, bien sûr, de l’électricité et de la plomberie.
Vous pouvez réfléchir si vous voulez des rangements intégrés ou des besoins spéciaux comme une rampe. Par exemple, avez-vous l’intention de garder votre VTT ou votre moto dans votre remise ? Dans ce cas, une rampe serait un ajout judicieux.
Enfin, les permis sont un facteur important lorsqu’il s’agit de construire ou d’ériger une structure sur votre propriété. Même une petite remise aura probablement besoin d’un certain type de permis. Par conséquent, vérifiez auprès des autorités locales chargées de la construction avant de commencer le processus.
Si vous prévoyez d’ajouter des installations électriques ou de plomberie, ces éléments nécessiteront probablement des inspections et des permis supplémentaires. Tout ceci s’applique que vous prévoyiez d’acheter une unité préfabriquée ou que vous construisiez la vôtre.
Où placerez-vous votre abri de jardin de 12′ x 8′ ?
Même si vous avez en tête l’endroit idéal pour votre remise, vérifiez d’abord les codes de construction locaux. Parfois, vous ne pouvez installer une remise qu’à un endroit particulier. D’autres fois, elle doit être à une certaine distance de la limite de la propriété et ne doit pas être visible de la rue.
Selon les règles et les restrictions, vous pourriez découvrir que vous ne pouvez pas installer une remise de 12 pi x 8 pi. Par conséquent, vous devrez peut-être vous contenter d’une remise de 10 pi x 8 pi ou de 8 pi x 6 pi. Selon vos intentions, cela pourrait être faisable ou anéantir complètement vos plans.
Mais, les permis et les codes de construction diffèrent d’un comté à l’autre et d’un état à l’autre. Certains comtés peuvent même ne pas avoir de codes de construction, surtout dans les zones rurales. Donc, c’est à vous de vérifier les directives là où vous vivez.
Une fois que vous aurez obtenu le feu vert pour votre remise, vous devrez vous assurer que le site est de niveau. Selon l’endroit où vous achetez votre remise, le détaillant peut avoir des exigences particulières concernant la fondation.
Vous devrez satisfaire à ces exigences avant que les constructeurs ne viennent s’installer. De même, si vous construisez votre propre remise, il est toujours essentiel de niveler le site avant de commencer.
Choisir le style de votre remise de 12 pi x 8 pi
Après avoir obtenu les permis nécessaires et choisi votre emplacement, il est temps de régler les détails. Quel style de remise voulez-vous ? Un style ranch avec un toit simple ou un style grange avec un toit surélevé ?
Allez-vous opter pour un abri de jardin de base, sans fioritures, ou allez-vous vous surpasser avec des volets et un toit en bardeaux ? Le style que vous choisirez dépendra en grande partie de l’utilisation que vous comptez faire de votre abri.
Vous pouvez également sélectionner des éléments tels que la couleur de la peinture ou de la teinture, la couleur du toit et le type de toit (c.-à-d., métal, bardeaux, etc.). Si vous achetez une remise d’une entreprise, vos options peuvent être limitées. Mais il n’est jamais inutile de demander si vous pouvez faire certains ajustements.
Par exemple, que faire si l’entreprise n’offre que des fenêtres à simple isolation et que vous voulez des fenêtres à double isolation ? Vous pourriez acheter les fenêtres que vous voulez séparément et les avoir prêtes le jour de l’installation.
Ensuite, l’entreprise installera ces fenêtres pour vous au lieu de celles qui sont fournies avec le hangar. On ne sait jamais ce qui est possible à moins de demander.
Plans de plancher possibles pour une remise de 12 pi x 8 pi
Comme nous l’avons mentionné précédemment, un hangar de 12 pi x 8 pi peut être beaucoup de choses différentes, même une très petite maison. Tout dépend de la façon dont vous planifiez votre aménagement et de l’efficacité maximale de l’espace. Voici quelques exemples de ce que peut faire une remise de 12 x 8 pieds.
Un atelier de 12′ x 8′
L’une des utilisations les plus populaires d’une remise est celle d’atelier. De nombreuses personnes y entreposent des outils et du matériel de jardinage et de pelouse. De plus, comme celle que nous vous présentons ici, elle comprend un établi intégré pour réaliser divers projets ou réparations.
Cet atelier comporte des étagères le long d’un mur de 12 pieds et trois fenêtres pour la lumière naturelle. Il y a également deux portes, une simple pour un accès facile et un ensemble de portes doubles sur le côté. Ces portes mènent à une rampe qui facilite l’accès aux tondeuses à gazon autoportées.
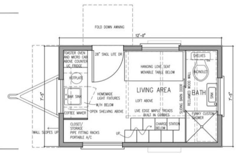
Une petite maison sur roues de 12′ x 8′.
Avec l’engouement récent pour les petites maisons et l’attrait des voyages, les petites maisons sur roues sont devenues populaires. Pour transporter une structure, vous avez généralement besoin d’un permis. Mais si elle fait 2,5 mètres de large ou moins, vous n’avez généralement pas besoin de transport spécial.
Ainsi, un hangar de 12′ x 8′, soit un peu moins de 8′ de large, est un bon candidat pour une maison mobile. Celle-ci dispose de tout dans un seul espace, y compris une petite kitchenette et une salle de bain étroite. Il y a également un auvent rabattable au-dessus de la porte lorsque la maison est stationnaire.
Une cabane surélevée de 12′ x 8′.
Si vous voulez une petite maison plus permanente, envisagez de convertir votre cabane de 12 x 8 pieds en une cabane de retraite. Ce plan se trouve dans une cabane à toit surélevé, ce qui permet d’aménager un espace loft avec un lit jumeau et des rangements.
Le niveau inférieur abrite une cuisine/salon avec une petite salle de bain. Un canapé-lit offre un lit jumeau supplémentaire.
Une cabane de piscine de 12′ x 8′
Si vous avez une piscine, un cabanon est un excellent moyen de stocker l’équipement et de servir de vestiaire. Cette configuration permet de ranger l’équipement sur les côtés et dans les coins, tout en laissant le centre ouvert pour que les gens puissent se changer. Vous pouvez également ranger les chaises de piscine, etc., dans cet espace en cas de mauvais temps.
Deux fenêtres laissent entrer la lumière naturelle tandis qu’une porte centrale permet l’accès. L’utilisation d’une seule porte permet de libérer tous les autres murs pour plus de rangement.
Questions connexes
Comment puis-je m’assurer que l’emplacement de ma remise est de niveau ?
Pour tester la planéité du futur emplacement de votre remise, vous aurez besoin de quelques piquets en bois, de ficelle et d’un niveau. Placez un pieu dans le sol à l’emplacement de chaque coin de votre remise. Déterminez quel coin est le plus haut et attachez la ficelle autour de celui-ci, en posant la ligne sur le sol.
Ensuite, tendez la ficelle vers le premier piquet le plus bas et attachez-la sans serrer. Déplacez-la vers le haut ou vers le bas sur le piquet, en utilisant le niveau pour déterminer sa bonne position. Lorsque la bulle de votre niveau indique que vous avez trouvé le bon point, mesurez depuis le sol jusqu’à la ficelle.
Cette mesure vous indique à quel point ce coin n’est pas de niveau. Vous pouvez répéter cette opération avec les autres piquets pour évaluer l’ampleur des travaux à effectuer pour niveler votre site.
Comment entretenir correctement un abri en bois ?
La meilleure façon d’assurer une longue durée de vie à votre abri en bois est d’éviter les dégâts causés par l’eau. Assurez-vous que l’eau de pluie a un endroit où aller, et ne la laissez pas s’accumuler autour de votre abri. Étanchéifiez les fenêtres et les portes, et il est bon de repeindre ou de restaurer votre abri tous les cinq ans environ.
Combien coûte une remise préfabriquée de 12 pi x 8 pi ?
Une remise de base en bois de 12 pi x 8 pi, y compris les portes et les fenêtres, coûte entre 2 500 $ et 3 000 $. Ce prix comprend généralement la livraison et l’installation, mais pas la mise à niveau du site. Le client est généralement responsable de s’assurer que le site sera de niveau le jour du chargement.
Les abris en plastique sont généralement un peu moins chers, entre 1 800 et 2 000 $. Quant aux hangars métalliques de base de 12 pi x 8 pi, ils coûtent entre 500 $ et 600 $. Bien entendu, plus vous ajoutez d’éléments supplémentaires, plus le prix est élevé.
Articles connexes
Mots clés: #Plans #dune #remise #avec #dessins,#Québec, #Canada












