Uncategorized
Plan de maison à deux étages de style chalet de montagne

– Sujet de l’article : Conception d’un cottage de deux chambres à coucher avec une terrasse enveloppante et un patio en contrebas.
– Caractéristiques intérieures :
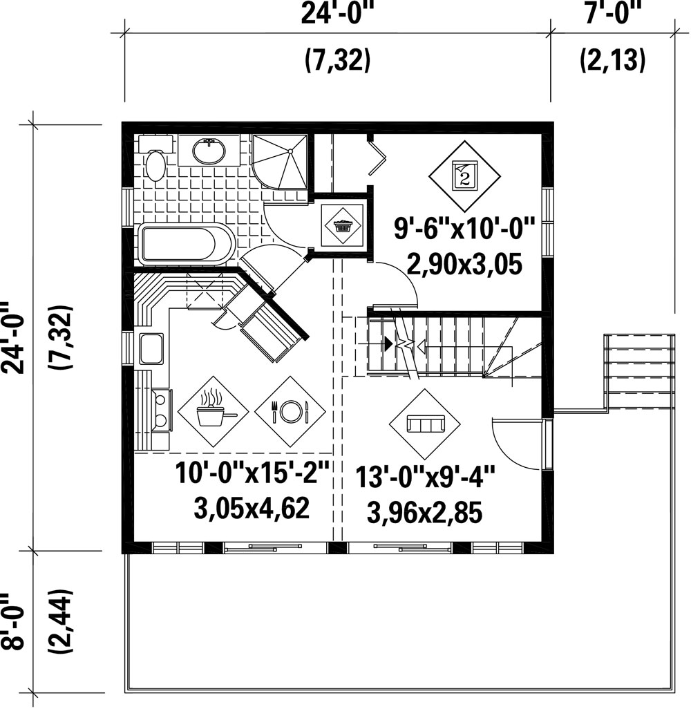
– Cuisine ouverte sur le coin repas et le salon pour faciliter les réceptions.
– Plafond cathédrale au-dessus du salon.
– Portes coulissantes en verre pour un accès direct à la terrasse.
– Une salle de bain complète spacieuse et une chambre confortable au niveau principal.
– A l’étage, une suite parentale spacieuse et privée avec une vue sur les espaces de vie et le paysage extérieur.
– Sous-sol :
– Peut accueillir une salle de loisirs ou d’autres usages.
– Des portes coulissantes en verre s’ouvrent sur le patio.











