Dimensions des petites toilettes (avec dessins)

L’achat d’une toilette peut sembler être un achat simple, mais il y a plusieurs choses que vous devez savoir avant d’acheter. Les toilettes sont l’un des éléments les plus fréquemment utilisés dans votre maison, vous devez donc vous assurer de choisir le bon modèle. Servez-vous de ce guide pour déterminer les dimensions appropriées de vos petites toilettes de salle de bains.
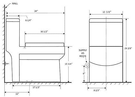
Les petites toilettes existent dans de nombreuses tailles différentes ; généralement, la plus grande différence par rapport à des toilettes standard est qu’elles sont plus minces. Elles sont aussi généralement moins profondes ; en moyenne, les petites toilettes mesurent 25 pouces de profondeur, 13 pouces de largeur et 28 pouces de hauteur. Bien entendu, les dimensions varient en fonction du modèle et de la marque.
Quelle est la taille moyenne d’une petite toilette ?
Les toilettes de petite taille ont une profondeur d’environ 10 cm inférieure à celle des toilettes standard. La profondeur des petites toilettes varie de 24 à 28 pouces. Le plus grand gain de place dans un petit WC est dû à la forme et à la taille du réservoir.
Les cuvettes de toilettes sont disponibles en deux formes différentes, allongée et ronde. Si vous êtes limité par l’espace, les cuvettes rondes sont la meilleure option. Elles sont de forme circulaire et nécessitent moins d’espace.
Les cuvettes de toilettes allongées sont généralement plus longues de 2 à 3 pouces à l’avant pour plus de confort et sont en forme de poire. Lorsque vous incorporez une cuvette de toilettes allongée, vous devez vous assurer que vous disposez de l’espace nécessaire. Votre cuvette ne doit pas interférer avec les portes, les tiroirs ou d’autres objets de la salle de bains.
Dégagement nécessaire pour une petite toilette
Quel que soit le type de toilettes que vous souhaitez pour votre salle de bains, vous devez vous assurer qu’il y a suffisamment d’espace. Vous devez toujours vous référer au code du bâtiment de votre région.
La plupart des codes du bâtiment exigent un espace de 15 pouces mesuré entre le centre des toilettes et tout mur ou obstruction. Le code exige également un espace d’au moins 30 pouces entre le centre des toilettes et le centre de tout autre appareil sanitaire. En outre, vous devez disposer d’un espace de 24 pouces devant les toilettes ou le bidet, mais la recommandation est de 36 pouces.
Dans la plupart des situations, les exigences de dégagement en largeur et en hauteur ne posent pas de problème. Il devrait y avoir un minimum de 30 pouces d’espace de gauche à droite.
Les distributeurs de papier hygiénique ou autres accessoires doivent être à la portée de l’utilisateur. Ils doivent être à 30 pouces du sol et pas à plus de 12 pouces de la toilette.
Fabricants et dimensions courantes des petites toilettes
Les cuvettes de toilettes rondes sont généralement plus petites que les cuvettes de toilettes allongées. Il est rare de trouver des cuvettes de toilettes allongées d’une longueur totale de 27 pouces.
Voici les toilettes les plus courantes et leurs dimensions :
Petite toilette Toto
La toilette Toto Drake 1.6 GPF Round 2-Piece est de conception traditionnelle. Elle est dotée d’un système de chasse d’eau silencieux mais puissant et d’une soupape de chasse d’eau de 3 pouces, plus large que les soupapes de chasse d’eau conventionnelles de 2 pouces.
Les toilettes Toto Drake ont une hauteur totale de 28,5 pouces et une largeur totale de 19,5 pouces. La profondeur de la toilette est de 26,38 pouces.
Toilette American Standard Small
La toilette H2Optimum à devant rond d’American Standard a une cuvette allongée et un rebord de 16 ½ pouces. La hauteur de la cuvette sans le siège est de 15 pouces et la valve de chasse d’eau est de 2 pouces. Les toilettes H2Optimum Round Front d’American Standard ont une profondeur totale de 15 pouces, une hauteur de 30 pouces et une largeur de 27,75 pouces.
Petit WC Kohler
Le WC 1 pièce Kohler Santa Rosa Comfort Height est un WC compact à chasse d’eau unique. Il a un look contemporain et une cuvette compacte et allongée, ce qui n’est pas très courant pour les petites toilettes.
La cuvette des toilettes a une hauteur de 16,5 pouces sans le siège et une valve de chasse de 3 pouces. Les toilettes Kohler Santa Rosa ont une profondeur totale de 27,75 pouces et une hauteur de 28,19 pouces. En outre, la largeur totale de la toilette est de 18,75 pouces.
Toilette Galba Small
Le petit WC Galba est le WC idéal pour les petites salles de bains. Il s’agit de l’un des plus petits modèles de toilettes, avec une cuvette allongée. Il mesure 24,5 pouces de long, 13,5 pouces de large et 28,5 pouces de haut. La hauteur du siège est de 16,5 pouces.
Swiss Madison Concorde Wall Hung Toilet
Le WC suspendu Swiss Madison Concorde est de forme carrée, ce qui permet de gagner de l’espace dans la plupart des salles de bains. Les toilettes à suspendre ont des bords bien définis, parfaits pour un look compact et minimal.
Le WC suspendu Swiss Madison Concorde a une largeur de 14,19 pouces et une profondeur de 22,44 pouces. Vous devriez suspendre la toilette à une hauteur totale de 16 à 20 pouces.
Quelles sont les dimensions standard des toilettes ?
Les toilettes de taille standard ont généralement une profondeur de 28 à 30 pouces, une largeur de 20 pouces et une hauteur de 27 à 32 pouces. L’encastrement est de 10 à 14 pouces.
La hauteur du siège se mesure du sol au sommet du siège. Il existe deux types de hauteur de siège, la hauteur standard et la hauteur de chaise.
Les toilettes à hauteur standard sont courantes dans la plupart des ménages et se situent entre 15 et 17 pouces du sol. Les toilettes à hauteur de chaise offrent un confort supplémentaire et constituent un bon choix pour les personnes à mobilité réduite. Les toilettes à hauteur de chaise se trouvent à une hauteur de 17 à 19 pouces du sol.
Comment mesurer une toilette
Lorsque vous achetez de nouvelles toilettes, vous voulez être sûr qu’elles s’adapteront à l’espace prévu. Pour trouver la bonne taille de toilettes pour votre salle de bains, vous devrez prendre un mètre à ruban et enregistrer les mesures. Mesurez la hauteur totale, la profondeur, la largeur et l’encombrement.
Mesurer la hauteur des toilettes
À l’aide d’un ruban à mesurer, mesurez du plancher au haut du siège de la toilette. Ensuite, mesurez du sol au sommet de la toilette ; cela vous donnera la hauteur totale. Vous voulez vous assurer que les toilettes peuvent entrer dans le même espace que vos toilettes actuelles.
Mesurer la profondeur des toilettes
Mesurez à partir de l’avant du rebord de la toilette jusqu’à l’arrière de la toilette. Il devrait y avoir 24 pouces d’espace devant la toilette. Cela permet de s’assurer qu’il y a suffisamment de place pour se déplacer à l’avant des toilettes.
Cela permettra également d’éviter que la porte de la salle de bain ou de la douche ne heurte les toilettes.
Mesurer la largeur des toilettes
Pour trouver la largeur des toilettes, mesurez du bord gauche au bord droit du réservoir ou du siège des toilettes. Utilisez la mesure la plus large pour vous assurer que la toilette s’adapte à l’espace. Il devrait y avoir 30 pouces d’espace pour la largeur de votre toilette, peu importe où elle est placée dans la salle de bain.
Mesurer l’encastrement des toilettes
La dimension critique lors de l’achat d’une toilette est la mesure de l’encastrement. Il s’agit de la distance entre le centre des boulons de l’armoire et le mur derrière la toilette. Mesurez à partir du mur arrière jusqu’au centre des boulons de l’armoire arrière.
La dimension standard des toilettes pour l’installation brute est de 12 pouces, mais elle peut varier de 10 à 14 pouces.
Styles de toilettes
Les toilettes existent en plusieurs styles différents. Voici un aperçu des différents types de toilettes.
Toilettes en deux parties
La toilette à deux pièces est une toilette de style traditionnel que vous avez probablement dans votre maison. La cuvette et le réservoir sont des pièces séparées, et le réservoir est boulonné à la cuvette.
Toilette monobloc
Offrant un aspect plus homogène, les toilettes monoblocs sont dotées d’une cuvette et d’un réservoir qui sont tout en un au lieu d’être séparés. Les toilettes monoblocs sont également plus faciles à nettoyer car il y a moins d’espaces et de fissures.
Toilettes d’angle
Si vous êtes limité par l’espace, les toilettes d’angle sont peut-être ce qu’il y a de mieux pour vous. On trouve le plus souvent des toilettes d’angle dans les demi-salles de bains. Ces toilettes sont des économiseurs d’espace qui peuvent s’adapter parfaitement à un coin, vous offrant ainsi plus d’espace au sol.
Toilette à sortie arrière
Les toilettes à sortie arrière se raccordent à la plomberie par le mur plutôt que par le sol. Ces toilettes sont idéales si vous avez une dalle de béton et que vous souhaitez ajouter une salle de bains. Les toilettes à sortie arrière vous donnent la possibilité de les installer dans la plupart des endroits de la salle de bains.
Toilette à réservoir élevé
Les toilettes à réservoir haut ont un look vintage et une fonctionnalité moderne. Le réservoir des toilettes n’est pas relié à la cuvette, mais plutôt suspendu au mur au-dessus. Lorsque vous tirez sur la chaîne, l’eau s’écoule du réservoir vers la cuvette et sort par le tuyau d’évacuation.
Toilettes à jupe
La plupart des toilettes monoblocs sont des toilettes à jupe, avec une trappe dissimulée sous le réservoir et la cuvette. Cela améliore l’apparence de la toilette et élimine les zones où la poussière ou d’autres particules pourraient s’accumuler, ce qui facilite le nettoyage.
Questions connexes
Quelle est la meilleure façon de nettoyer le réservoir des toilettes ?
Beaucoup de gens nettoient leurs toilettes selon un calendrier strict, mais ils oublient souvent le réservoir des toilettes. Pour nettoyer le réservoir des toilettes, enlevez le couvercle et regardez à l’intérieur pour voir s’il y a une accumulation de minéraux ou des débris. Si vous en voyez, versez 4 tasses de vinaigre dans le réservoir et laissez tremper pendant une heure.
Ensuite, coupez l’eau et tirez la chasse d’eau, afin de vider le réservoir et de pouvoir nettoyer correctement l’intérieur. Utilisez une éponge ou une brosse à toilettes pour frotter les parois du réservoir, puis remettez l’eau et laissez le réservoir se remplir. Une fois le réservoir rempli, tirez la chasse plusieurs fois pour rincer le réservoir.
Peut-on verser de l’eau de Javel dans les toilettes ?
Vous devez respecter les règles de sécurité en matière de drainage en ne jetant jamais de matières dangereuses dans un drain, y compris dans les toilettes. Si vous avez une fosse septique, ne versez jamais d’eau de Javel dans les toilettes. L’eau de Javel peut tuer les bactéries bénéfiques qui décomposent les déchets septiques.
L’eau de Javel et les produits de nettoyage peuvent créer des gaz toxiques lorsqu’ils sont mélangés. Si vous versez de l’eau de Javel ou d’autres produits de nettoyage dans les toilettes, cela peut contaminer l’air de votre maison.
Guide connexe
Mots clés: #Dimensions #des #petites #toilettes #avec #dessins,#Québec, #Canada












