Plans d’immeubles d’appartements de 6 unités (avec exemples réels)

Investir dans un immeuble d’appartements est un moyen fantastique de constituer votre portefeuille financier. Vous pouvez vivre dans l’une des unités, gérer vous-même la propriété et percevoir un loyer pour rembourser l’hypothèque. En fonction de vos ressources, vous pouvez décider d’investir dans un duplex, un triplex ou même un immeuble de 6 logements.
Un immeuble typique de 6 logements peut avoir trois étages, avec deux logements par étage. Une autre norme de conception est la rangée de maisons en rangée de 6 unités qui est simplement une unité juste à côté de l’autre. Certains immeubles d’appartements de 6 unités peuvent également être hauts de deux étages, avec trois unités par étage.
Résider dans un immeuble d’appartements à plusieurs logements présente ses propres avantages et inconvénients. S’entendre avec les autres habitants de l’immeuble est une nécessité et devrait être une priorité absolue. N’oubliez pas que vous partagerez les mêmes murs et que votre plancher peut être le plafond de quelqu’un d’autre, alors la gentillesse et la considération sont essentielles.
Plan d’un immeuble d’appartements de trois étages pour 6 unités
Cet immeuble de 6 appartements est une version moderne de la vie en appartement avec de grandes baies vitrées et une façade éclectique. Haut de trois étages, cet immeuble abrite deux unités par étage avec des balcons pour les unités des étages supérieurs. Il n’y a pas d’ascenseur, et le seul accès aux étages supérieurs est constitué de deux cages d’escalier situées juste à côté de l’entrée principale.
Chaque unité comprend deux chambres à coucher, chacune mesurant 12 x 11 pieds et 10 x 10 pieds. Un salon et une salle à manger à aire ouverte occupent la moitié de la superficie de l’unité. Ces espaces mesurent 12 x 9 pieds pour la salle à manger et 12 x 13 pieds pour le salon.
Des toilettes et une salle de bain complètes, ainsi qu’une cuisine petite mais complète, occupent le reste de l’espace de cette unité confortable. Une buanderie située à côté de la cuisine pourrait servir de salle de lavage si elle était équipée des raccordements appropriés. Au total, chaque unité offre un espace de vie de 900 pieds carrés.
L’extérieur du bâtiment dégage des vibrations véritablement modernistes grâce au jeu des différents matériaux de construction. Le mariage astucieux du bois, de la pierre, de l’acier et du verre s’harmonise parfaitement avec l’interaction des tons neutres tamisés.
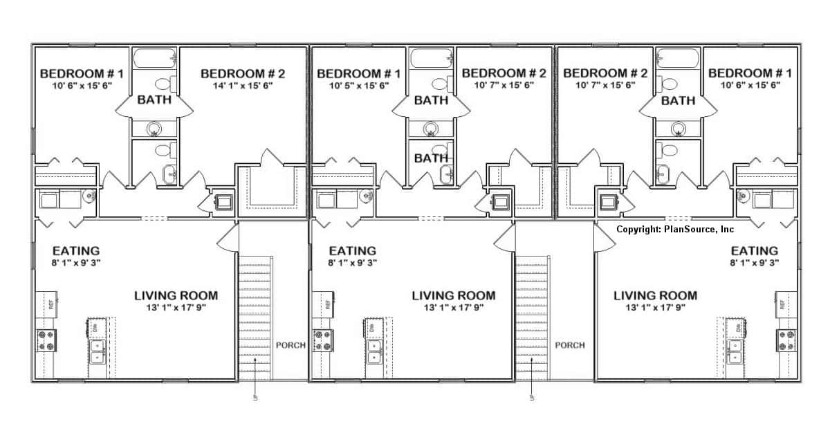
Plan d’un immeuble de deux étages pour 6 appartements
Cet immeuble d’appartements de deux étages et de six unités présente trois unités d’appartements par étage avec deux cages d’escaliers entre les unités. Chaque appartement dispose de deux chambres à coucher, d’une ½ salle de bain et d’un grand espace de vie. Ce plan d’immeuble d’appartements est typique de nombreuses villes urbaines du pays et reste populaire au fil des ans.
La chambre principale mesure 14 x 15 pieds, et la chambre secondaire 10,5 x 15,5 pieds. La salle de séjour est l’espace le plus important de l’appartement avec ses 13 x 17,5 pieds. Un coin repas mesure 8 x 9 pieds, les 1 ½ salles de bain et une petite cuisine constituent le reste.
Au total, chaque unité offre 980 pieds carrés de surface habitable. De nombreux immeubles d’appartements de cette nature servent de résidence adéquate pour les petites familles de 2 ou 3 personnes. Un petit porche à côté de chaque cage d’escalier est parfait pour abriter les boîtes aux lettres de chaque appartement.
Plan d’un immeuble de 6 maisons en rangée
Le plan de construction de 6 maisons en rangée rappelle les brownstones typiques des quartiers aisés des villes du nord-est du pays. Les appartements de type maisons en rangée sont généralement plus grands que les immeubles à deux ou trois étages comportant le même nombre d’unités. Avec deux étages d’espace habitable, les maisons en rangée constituent une option plus spacieuse pour les familles de plus de deux personnes.
Les unités d’appartement dans les immeubles de style maison en rangée ont généralement 3 chambres à coucher, 2 ½ salles de bain, et même un ou deux walk-in. La chambre principale mesure 12 x 16 pieds, les autres chambres mesurant environ 11 x 11 pieds chacune, en moyenne. Le rez-de-chaussée comprend le salon, la salle à manger, la cuisine et la buanderie.
Le rez-de-chaussée offre environ 700 pieds carrés de surface habitable et 650 pieds carrés pour l’étage supérieur. La plupart des rez-de-chaussée ont une disposition ouverte avec une salle d’eau à l’avant et une cheminée à l’arrière. Certaines unités offrent une terrasse à l’arrière de l’unité, ce qui ajoute un espace de vie extérieur utilisable.
Avantages et inconvénients de la vie en appartement
De nombreuses personnes ne sont pas enthousiastes à l’idée de vivre dans un immeuble à appartements. L’idée de partager un mur avec un parfait inconnu et que tout le monde sache ce que vous faites est effrayante pour beaucoup de personnes. Si l’on ne s’entend pas avec la fille d’à côté, le simple fait de marcher dans un couloir partagé devient une épreuve redoutable.
Mais il y a aussi d’énormes avantages à ce type de vie commune. Des amitiés peuvent naître entre voisins, et vous pouvez veiller les uns sur les autres et sur la propriété de chacun. La vie en appartement est également plus facile pour le budget, et le stationnement est presque toujours inclus dans le contrat.
Cinq avantages de la vie en appartement
Pas de soucis d’entretien
Les propriétaires dignes de confiance sont fiers de maintenir un bâtiment propre et fonctionnel avec des systèmes de chauffage, de climatisation et de sécurité appropriés. Ils entretiennent également de bonnes relations avec des entrepreneurs responsables qui peuvent se déplacer rapidement pour une demande de réparation urgente.
Pas de désherbage, de tonte ou d’arrosage.
La plupart des appartements n’ont pas de pelouse à tondre ou de parterres de fleurs à arroser. Vous n’aurez pas à vous soucier de l’achat d’une tondeuse à gazon et à chercher un espace pour la ranger lorsqu’elle n’est pas utilisée. Cependant, si vous aimez jardiner et planter, cette option résidentielle n’est peut-être pas pour vous.
S’amuser dans la piscine
Comme incitation supplémentaire, beaucoup d’immeubles d’appartements offrent des installations de piscine. En tant que résident, vous avez un accès complet à la piscine sans avoir à vous soucier de son nettoyage et de son entretien. Il suffit de se baigner quand il fait chaud, de se prélasser dans une chaise longue et de ne pas s’inquiéter.
Un sens de la communauté
La société actuelle présente tristement la lente disparition de la communauté, mais ce n’est pas le cas avec la vie en appartement. Le fait d’être à proximité de personnes vous oblige à être sociable et à vous faire des amis. En conséquence, vous éprouverez un sentiment d’appartenance et saurez que quelqu’un assure vos arrières pendant que vous assurez les siens.
Des yeux vigilants partout
La plupart des immeubles d’habitation offrent une surveillance 24 heures sur 24 et 7 jours sur 7 tout autour de la propriété. Cette mesure de sécurité est étendue lorsque les voisins veillent également les uns sur les autres. Un voisin vigilant est plus à même de repérer des événements sortant de l’ordinaire que n’importe quelle caméra vidéo.
5 inconvénients de la vie en appartement
Espace limité
Regardons les choses en face : les appartements sont le plus souvent de petits logements qui ne laissent pas beaucoup de place pour s’étendre. Il n’y a aucune possibilité d’ajouter une pièce à l’arrière ou de construire un espace de vie extérieur. Soit vous devez faire preuve de créativité, soit vous déménagez et cherchez une maison indépendante.
Problèmes de stationnement
Le stationnement peut devenir un problème si et quand vous décidez que vous avez besoin de plus d’un véhicule. Un autre problème de stationnement malheureusement courant est celui du voisin qui prend votre place de stationnement ou qui vient tout juste de réussir son auto-école. Le stationnement est l’une des principales raisons pour lesquelles les habitants d’appartements finissent par devenir des habitants de maisons.
Limites de la décoration intérieure
La plupart des immeubles d’habitation, sinon tous, ne vous permettront pas de repeindre leurs murs blancs. Et si vous le faites quand même, vous devez les repeindre en blanc avant de partir. Ou dites adieu à votre dépôt de garantie.
Pet Restrictions
Nous sommes nombreux à aimer les animaux, mais la plupart des propriétaires ne le sont pas. Les immeubles d’habitation ont souvent des restrictions très précises concernant les races de chiens, la taille et le poids des animaux. Si vous avez plusieurs animaux, un appartement à plusieurs logements peut ne pas vous convenir, à vous et à vos petits compagnons.
Des yeux vigilants partout
Avoir des voisins observateurs qui veillent sur vous est une bonne chose. Mais des voisins fouineurs qui ne font rien d’autre que de vous observer toute la journée peuvent être angoissants. Des voisins fouineurs et bruyants peuvent faire de la vie en appartement une expérience épouvantable, surtout dans une structure partagée.
Questions connexes
Comment choisir un appartement pour moi et ma famille ?
Outre les facteurs les plus évidents tels que l’emplacement, le budget et la taille, il existe des éléments essentiels à prendre en compte lors du choix d’un appartement. Si possible, voyez toujours le logement de vos propres yeux au lieu de vous fier à des photos retouchées en ligne. Parlez aux voisins si vous le pouvez, et faites-vous une idée du quartier.
Vérifiez si la zone est sûre et sécurisée. Regardez la façade du bâtiment et prenez note de sa propreté et de son intégrité structurelle.
Examinez tout le bâtiment, du garage de stationnement aux gouttières et aux bennes à l’arrière. N’oubliez pas que vous cherchez une maison où vous pourrez être en sécurité et heureux.
Dois-je louer ou acheter ?
Ahhh, l’éternelle question : louer ou acheter. La réponse dépend des besoins de votre famille et de vos projets, à court ou à long terme.
Si vous vous trouvez dans une ville que vous et votre famille aimez, vous pouvez envisager d’acheter une maison. Vous pouvez acheter un appartement au lieu de le louer, en tenant compte des limites de la vie en appartement. L’achat d’un appartement peut s’avérer un investissement rentable et peut devenir un actif générateur de revenus pour votre famille.
En résumé
La vie en appartement ne convient pas à tout le monde. Si vous aimez les contacts avec les gens et que vous n’aimez pas travailler sur la pelouse, l’appartement est peut-être fait pour vous. L’achat d’un appartement pour consolider votre portefeuille d’investissement peut également être une bonne décision.
Qu’il s’agisse d’une structure unifamiliale ou d’un appartement dans un immeuble collectif, nous avons tous besoin d’un endroit que nous appelons maison.
Publié récemment
Mots clés: #Plans #dimmeubles #dappartements #unités #avec #exemples #réels,#Québec, #Canada











